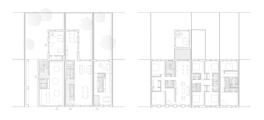
Gründungsviertel Lübeck

 

Kategorie: offener Wettbewerb 

Status: Wettbewerbsbeitrag

Auslober: Hansestadt Lübeck

Entwurf: Herr & Schnell Architekten

Projektbeteiligte: Christian Pälmke

Ort: Lübeck, Deutschland

 Jahr: 2015

   –   Impressum    –   Datenschutz