SV Tonndorf - Lohe

 Kategorie:  Vereinshaus

Status: In Planung

Leistungsphasen: 1-8

Auftraggeber: Freie Hansestadt Hamburg, Bezirk Wandsbek vertreten

durch: GMH | Gebäudemanagement Hamburg GmbH

Entwurf: Herr & Schnell Architekten mit Gonzalez Hinz Zabala Architects

 Projektbeteiligte: IB Hannes Römbell (Tragwerk / Wärmeschutz), 

DJM Planung GmbH (TGA), HAHN Consult (Brandschutz)

Bauweise: Holzbau

Fläche: ca.185 qm BGF

Ort: Tonndorf, Hamburg

Jahr: 2021

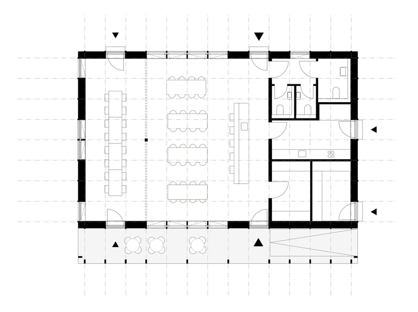
Herr & Schnell Architekten wurde gemeinsam mit Gonzales Hinz Zabala architects von der Stadt Hamburg beauftragt ein Typenhaus für Sportvereine zu entwickeln. Das Gebäude soll entsprechend der Bedarfe an den jeweiligen Standorten in unterschiedlichen Größen realisiert werden können. Die Gebäudekonstruktion, Fassaden und das Grundrisslayout basieren daher auf einem 1,25m Raster und die genauen Gebäudeabmessungen lassen sich standortspezifisch festlegen. Die Gebäude bestehen immer aus einem dreiseitig belichteten, großzügigen Aufenthaltsraum, welcher sich flexibel nach dem Bedarf des Nutzers unterteilen lässt und einem gebündelten Bereich mit den erforderlichen Nebenräumen. Das erste Typenhaus wird auf dem Sportgelände des SV Tonndorf-Lohe, westlich der Sportplätze entstehen. Das Vereinshaus beinhaltet u.a. einen Schank- und Jugendraum für Veranstaltungen, ein kleines Büro und eine Küche. Durch den Dachüberstand an einer Längsseite des Gebäudes entsteht eine großzügige, überdachte Aufenthaltsfläche im Freien. Die Vereinshäuser werden als Holzbauten in Holztafelbauweise hergestellt. Durch eine gleichmäßig, gerasterte Fassadengestaltung mit vertikalen Elementen entsteht ein ruhiges und angemessen kleinteilig gegliedertes Erscheinungsbild. Die zum Spotplatz ausgerichteten Giebelfassaden werden durch die Ausbildung eines flachgeneigten Satteldaches angemessen leicht betont und mit einer extensiven Begrünung versehen. Der konstruktive Holzschutz wird über die Ausbildung eines 30cm hohen Sockels gewährleistet und die barrierefreie Erschließung erfolgt über eine kleine Rampe im Bereich der überdachten Terrasse.


Grundriss EG

Ansicht Ost

Impressum    –   Datenschutz